Zwei gastehauser mit insgesamt 100 betten in modernen einzel und doppelzimmern oder in familienappartements stehen ihnen zur verfugung.

Haus seeadler sellin.
Das haus seeadler liegt im ostseebad sellin ca.
Residenz seeblick ferienwohnung seeadler in sellin fur bis zu 3 gaste bei traum ferienwohnungen keine service gebuhr direkter kontakt zum gastgeber.
Haus seeadler ostseebad sellin mit 70 betten sowie gastehaus villa gustav adolf mit 30 betten in modernen einzel und doppelzimmern oder als familienappartements vphp haus ostsee im ostseebad thiessow 45 betten hp sv.
Entspannen sie sich bei guter luft und fuhlen sie sich wohl in der angenehmen atmosphare unserer christlich gefuhrten hauserunser haus in sellin hier vollpension und halbpension bietet optimale voraussetzungen fur familien einzelgaste und gruppen senioren kirchgemeinden menschen mit behinderung.
Das haus seeadler in sellin verfugt uber 100 betten in modernen doppelzimmern familienappartements 2 zusammenhangende wohn schlafraume alle zimmer mit duwc telefon.
15 minuten fussweg vom schonen sandstrand der ostkuste rugens entfernt.
15 minuten fussweg vom schonen sandstrand der ostkuste rugens entfernt.
Das haus seeadler liegt im ostseebad sellin ca.
Im ostseebad sellin das haus seeadler mit zwei gastehausern und einem begegnungszentrum hier 100 betten alle zimmer mit duwc fahrstuhl in beiden gastehausern verpflegung.
Unser begegnungszentrum bietet ideale bedingungen fur familienurlaub seniorenerholung gemeinsame begegnungen freizeitaktivitaten seminare und tagungen.
Haus A Capella In Binz Germany 20 Reviews Prices Planet Of
Gruppenhauser Und Unterkunfte Fur Chorfreizeiten Himmlische
Haus Seeadler Sellin Familienferienstatten In Mecklenburg
Haus Seeadler Christliche Gastehauser Ggmbh Home Facebook
Gruppenhauser Und Unterkunfte Fur Management
Vacation Home Haus Seeadler Ummanz Germany Booking Com
Haus Seeadler Im Ostseebad Sellin Urlaub Auf Rugen
Haus Seeadler Und Haus Ostsee In Sellin Bei Gruppenunterkunfte
R R Villen Baabe 66 7 4 Prices Hotel Reviews Ostseebad
Alt Reddevitz Alt Reddevitz X 1960 Middelhagen Ruegen
Familienfreizeit Auf Der Insel Rugen Erf De
Haus Seeadler Sellin Familienferienstatten In Mecklenburg
Haus Concordia F512 Wg 15 Putbus In Binz Germany Reviews
Haus Seeadler Sellin Christliche Hotels Und Tagungsstatten
Haus Seeadler Im Ostseebad Sellin Urlaub Auf Rugen
Kasinohoteller Sellin Rugen
Gruppenhauser Und Unterkunfte Fur Chorfreizeiten Himmlische
Haus Meeresblick Studio Seeadler A 1 15 Ref 157688 U 2 In Baabe
Ak Ansichtskarte Sellin Ruegen Haus Freya Silva Kat Sellin
Familienferienstatte Haus Seeadler Und Haus Ostsee Ostseebad
Ferienhaus Glowe Fur Den Urlaub Mit Hund Fur Bis Zu 6 Personen Mieten
Ansichtskarte Postkarte Ostseebad Sellin Auf Rugen Haus Akpool De
Http Lkg Vorpommern De Doc Durchblick 202010 02 Pdf
Haus Helene Sellin
Holzhaus Seeadler Ausflugsziele
Haus Seeadler Im Ostseebad Sellin Urlaub Auf Rugen
Ferienhaus Glowe Fur Den Urlaub Mit Hund Fur Bis Zu 6 Personen Mieten
Sommerurlaub Rugenurlaub
Haus Seeadler Im Ostseebad Sellin Urlaub Auf Rugen
Haus Seeadler Im Ostseebad Sellin Urlaub Auf Rugen
Residenz Seeblick Ferienwohnung Seeadler Sellin Frau Ramona
Villen In Mecklenburg Vorpommern Bei Hrs Holidays Luxusurlaub
Reethaus Seeadler Rugen Apartment Price Address Reviews
Gingst Hotels 26 Cheap Gingst Hotel Deals Germany
Reisen Christliche Reisen Freizeiten Erf De
Evang Familienferienwerk Haus Seeadler
Haus Seeadler Sellin Familienferienstatten In Mecklenburg
Ak Ansichtskarte Sellin Ruegen Haus Freya Silva Kat Sellin
Media Cdn Tripadvisor Com Media Photo M 1280 1a
Media Cdn Tripadvisor Com Media Photo M 1280 1a
Hotels Near Apartment Schmidt Haus Huhnergott Leadingcourses
Seniorenfreizeit Im Haus Seeadler Landesverband Evangelisch
The World S Best Photos Of Rugen And Sellin Flickr Hive Mind
Yoga Fasten Wandern Haus Seeadler Im Ostseebad Sellin Auf Rugen
Rugen Eine Insel Zum Traumen Kultur Bischofliche Akademie
Apartment Reethaus Seeadler Baabe Germany Booking Com
Seite 22 Hotels In Blieschow Viamichelin
Feriendomizil Buchenweg Sellin
Komf App Direkt Am Meer Studio App Seeadler Sellin Rugen
Haus Seeadler Und Haus Ostsee In Sellin Bei Gruppenunterkunfte
Familienferienstatte In Ostsee Mecklenburg Vorpommern Finden
Haus Seeadler Haus Ostsee Christliche Gastehause Ggmbh
Familienferienstatte Haus Seeadler Und Haus Ostsee Ostseebad
Ferienhaus Glowe Fur Den Urlaub Mit Hund Fur Bis Zu 6 Personen Mieten
Stellenangebot Finanzbuchhalter M W D In Baabe Bei Strandhotel
Reethaus Seeadler Rugen Apartment Price Address Reviews
Rugen Eine Insel Zum Traumen Kultur Bischofliche Akademie
Haus Seeadler Im Ostseebad Sellin Urlaub Auf Rugen
Hotel Hanseatic Rugen Und Villen Goehren Ruegen 4 Germany
Fastenwandern Ostsee Rugen 14 03 2020 21 03 2020 Fastenwelt
Christliche Gastehauser Ggmbh Haus Urlaub Mit Der Familie
Haus Seeadler Und Haus Ostsee In Sellin Bei Gruppenunterkunfte
Die 7 Besten Bilder Auf Ferienhaus Albatros Ii Auf Rugen In
Ansichtskarte Sellin Rugen Haus Seeadler Ferienstatte 1998
Residenz Seeblick Ferienwohnung Seeadler Sellin Frau Ramona
Reethaus Seeadler Baabe Updated 2020 Prices
Seniorenfreizeiten Feg Hamburg Horn
Die 80 Besten Bilder Von Urlaub Mit Der Familie Familiy Holidays
Yoga Fasten Wandern Haus Seeadler Im Ostseebad Sellin Auf Rugen
Haus Seeadler Und Haus Ostsee In Sellin Bei Gruppenunterkunfte
Holzhaus Seeadler Ausflugsziele
Haus Seeadler Im Ostseebad Sellin Urlaub Auf Rugen
Haus Seeadler Und Haus Ostsee In Sellin Bei Gruppenunterkunfte
Ak Ansichtskarte Sellin Ruegen Haus Freya Silva Kat Sellin
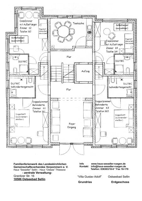
Villa Gustav Adolf Haus Seeadler
Christen Bei Den Bahnen 30 4 3 5 2020 Jubilaums Jahrestagung
Holiday Houses In Alt Reddevitz
Gruppenhauser Und Unterkunfte Fur Management
Haus Ruegentraum In Baabe F 658 Mi Baabe Germany From Us 213
Holiday Home Staphel Haus Seeadler Germany Booking Com
Apartment Reethaus Seeadler Baabe Germany Booking Com
Familienferienstatte Haus Seeadler Und Haus Ostsee Ostseebad
Evangelisch Freikirchliche Gemeinde Berlin Tempelhof K D O R
Haus Seeadler Christliche Gastehauser Ggmbh Himmlische Herbergen
Ak Sellin A Rugen Pension Strandhaus Vom Garten Gesehen Nr
Holiday Houses In Alt Reddevitz
Ak Ansichtskarte Postkarte Sellin Auf Rugen Strandleben Eur 3
Ak Ansichtskarte Sellin Ruegen Haus Freya Silva Kat Sellin
Hotels Am Aalkaten Ostseebad Baabe Stadtplan
Holzhaus Seeadler Ausflugsziele
Strandresidenz Baabe Typ A Inkl Hallenbad Und Sauna Wohnung
Ansichtskarte Postkarte Ostseebad Sellin Auf Rugen Haus Akpool De
Haus Seeadler Sellin Familienferienstatten In Mecklenburg
Familienferienstatte Haus Seeadler Und Haus Ostsee Ostseebad
Haus Seeadler Christliche Gastehauser Ggmbh Community Facebook
Reethaus Seeadler Rugen Apartment Price Address Reviews
Reethaus Seeadler Rugen Price Address Reviews
2012 05 Werbung Familienfreizeit Sommerspecial Haus Seeadler